HỒ SƠ KỸ THUẬT THI CÔNG
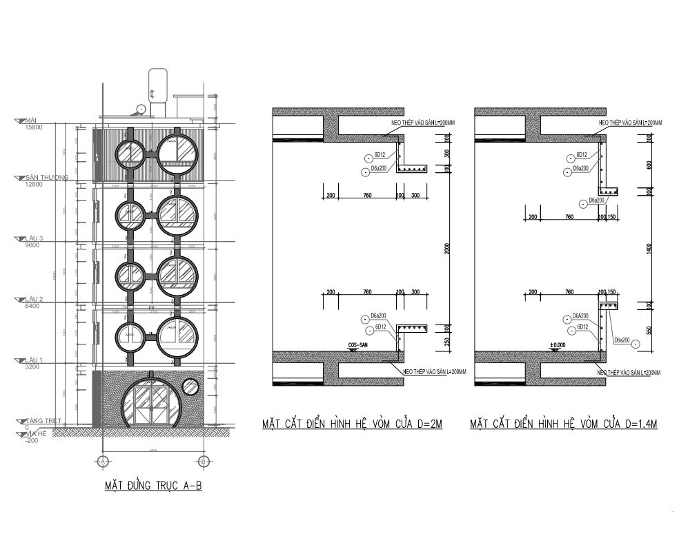
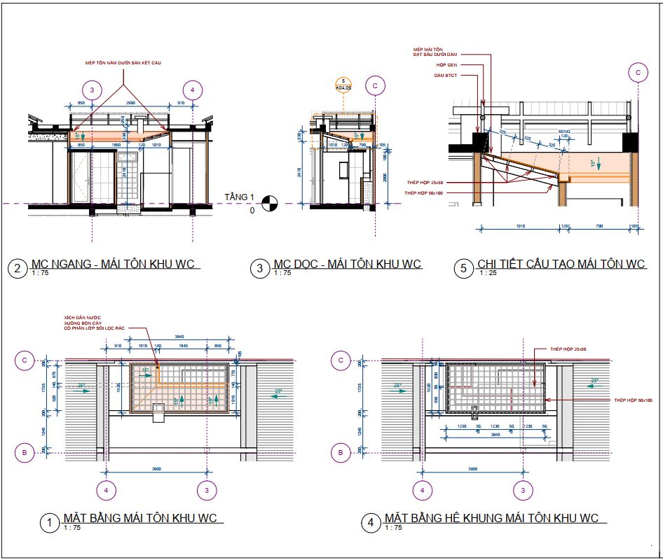
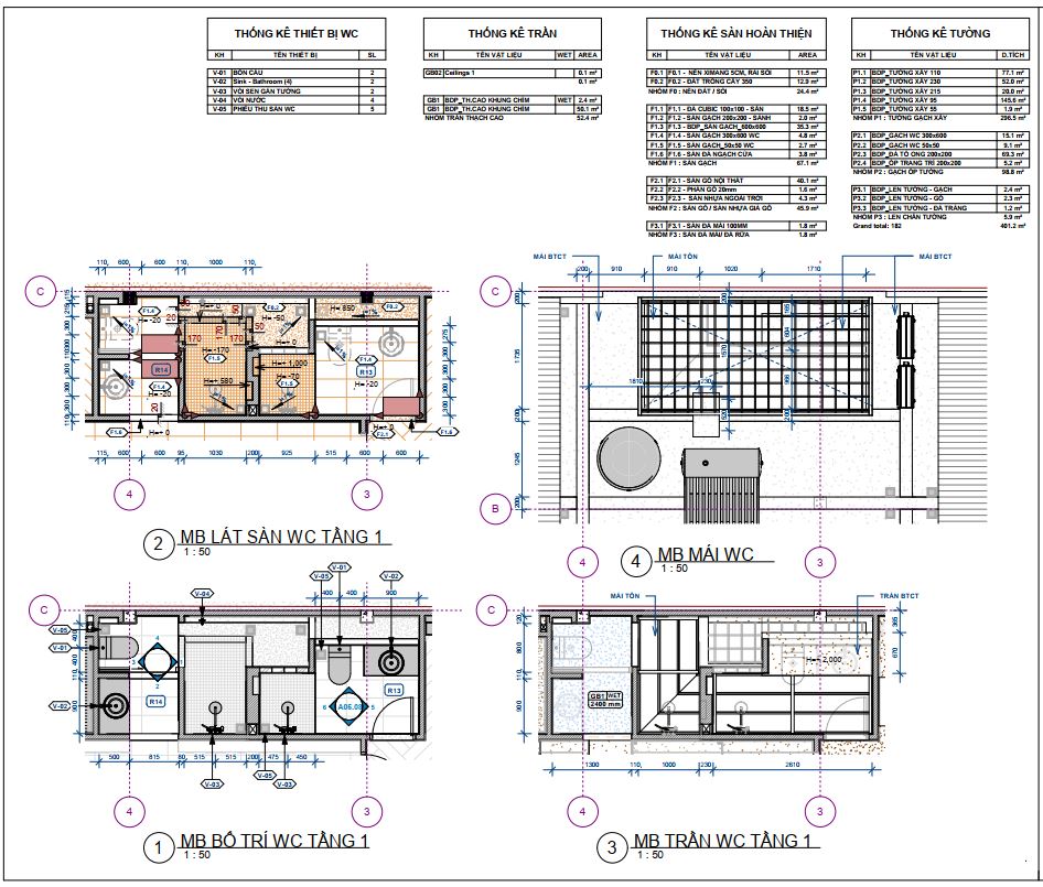
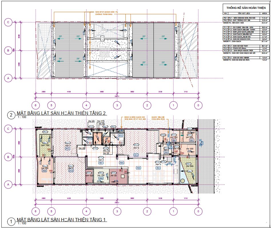
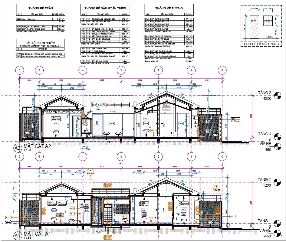
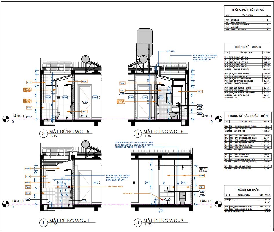
Hồ sơ thiết kế kiến trúc & cảnh quan
-Là bản vẽ diễn giải kich thước, vật liệu, và thông tin cho các bên liên quan nắm & thực thi ngoài công trình
-Bản vẽ gồm : bản vẽ kích thước tường, sàn, trần,Mặt đứng, mặt cắt công trình, định vị thiết bị đầu ra ( công tắc ổ cắm ), chi tiết tam cấp/thang/lan can/ban công,… chi tiết cửa, chi tiết mái, chi tiết sắt, và cac chi tiết đặc biệt cho riêng từng công trình,…
————
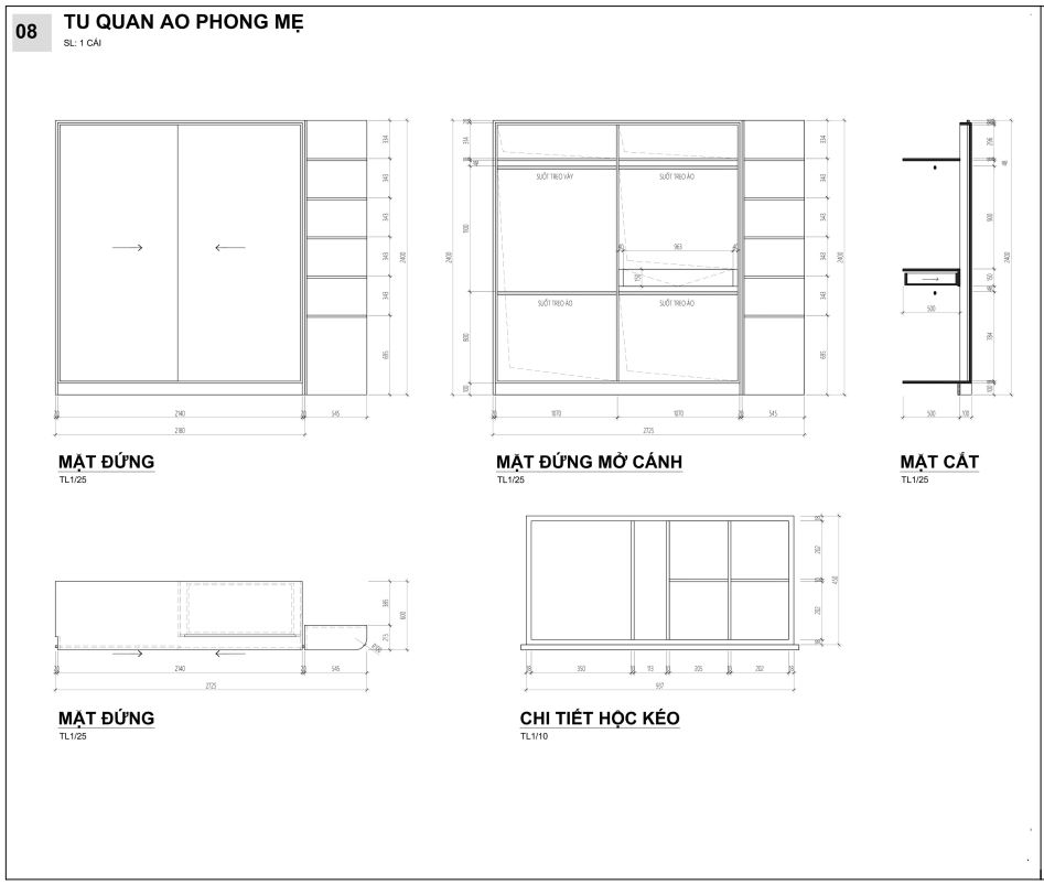
Hồ sơ thiết kế nội thất
-Là bản vẽ diễn giải kich thước, vật liệu, và thông tin cho các bên liên quan nắm & thực thi ngoài công trình
-Bản vẽ nội thất gồm : bản vẽ kích thước nội thất, cách ráp gỗ, chỉ định vật liệu gỗ, mã thiết bị sản phẩm, màu sơn,…
————
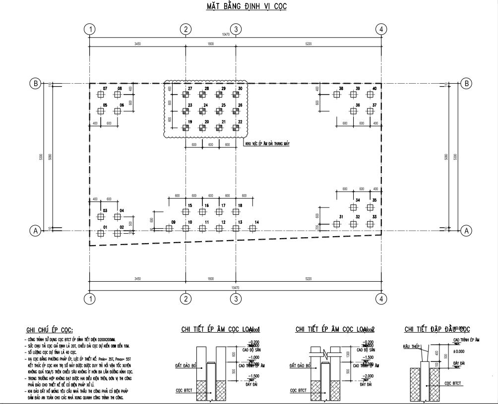
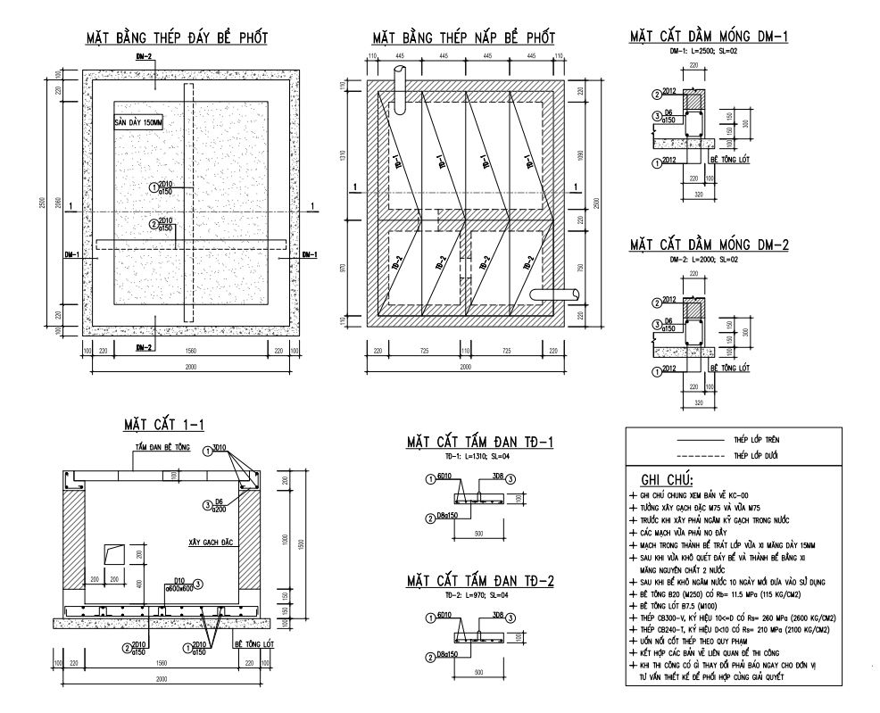
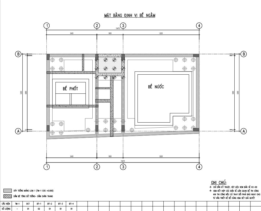
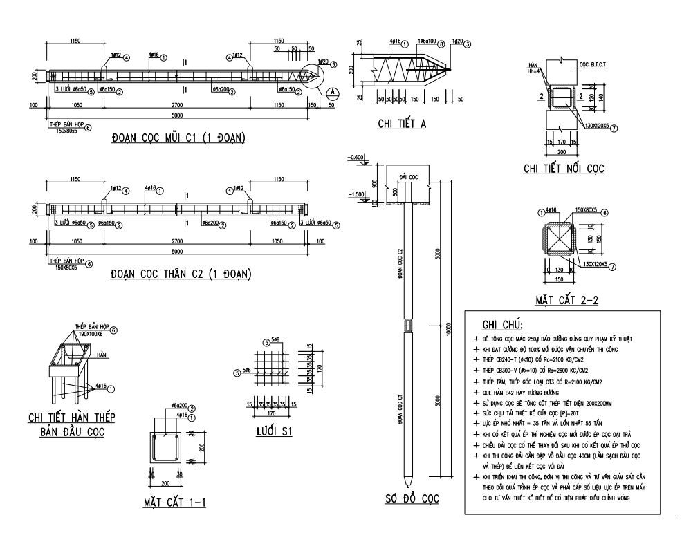
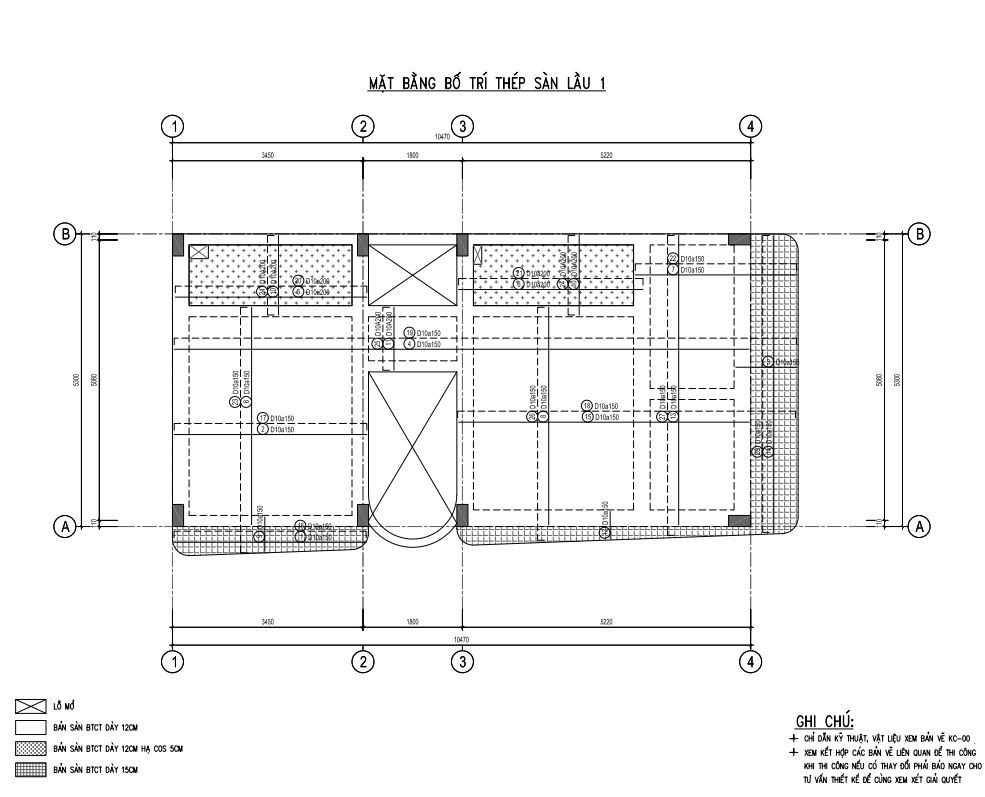
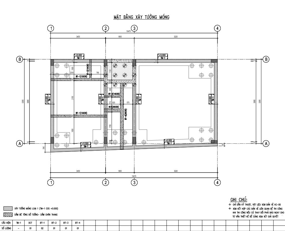
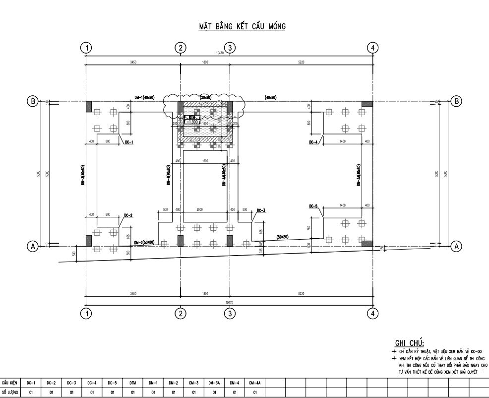
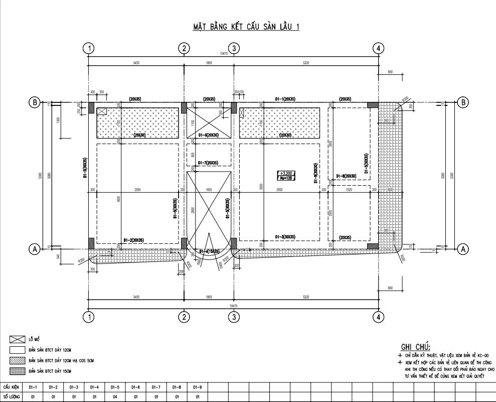
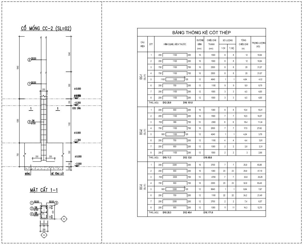
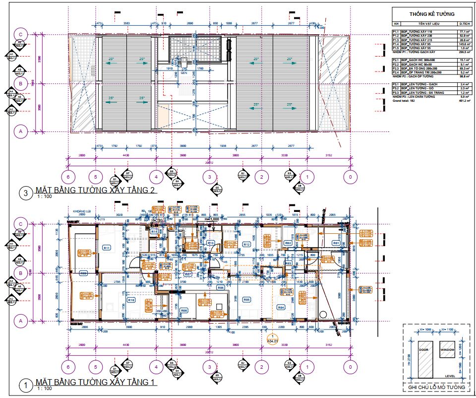
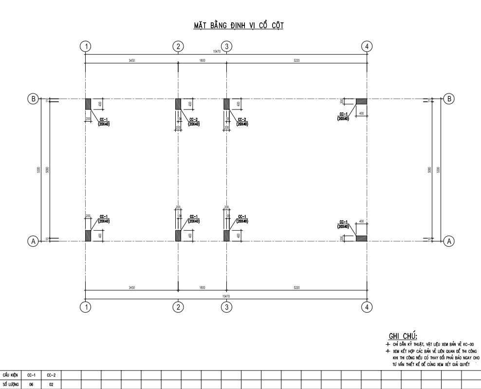
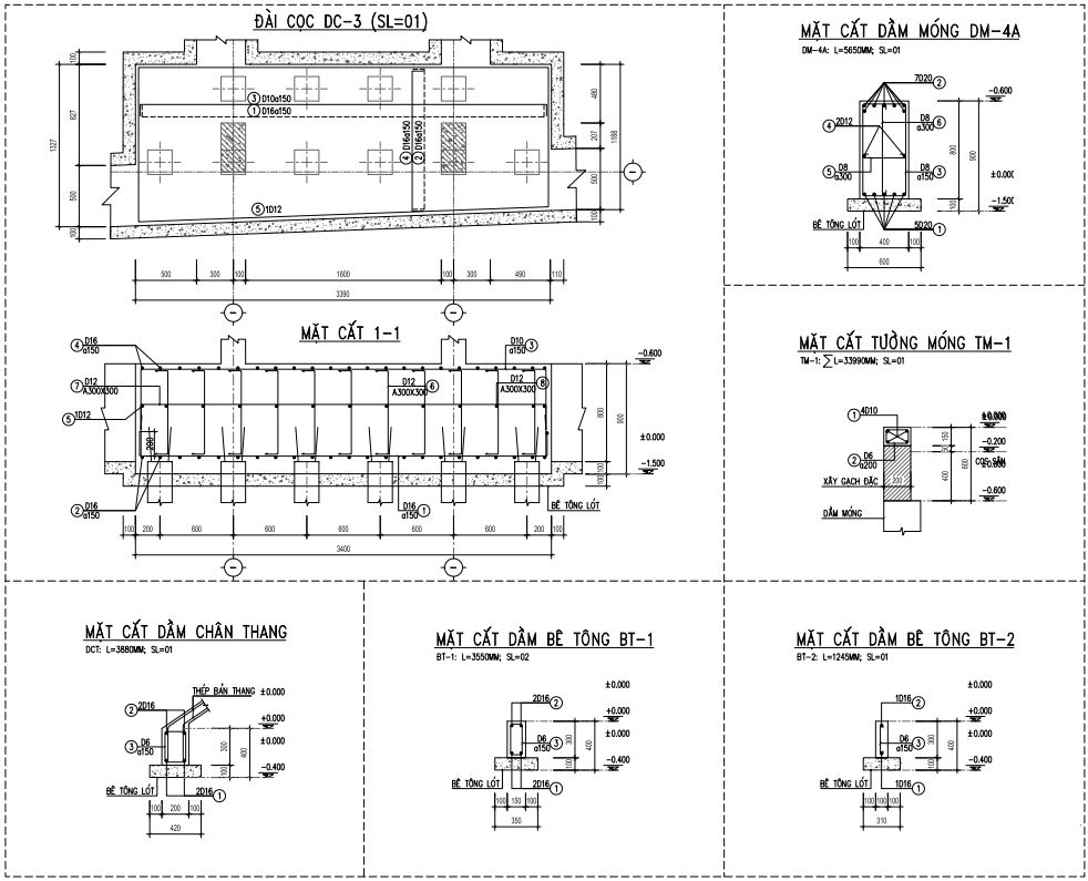
Hồ sơ thiết kế kết cấu
-Là bản vẽ diễn giải kich thước, vật liệu, và thông tin cho các bên liên quan nắm & thực thi ngoài công trình
-Bản vẽ kết cấu gồm : các bản vẽ định vị cọc móng, cột, dầm, đà, chi tiết bể phốt, cách bố trí thép bên trong cột dầm đà, sàn, mái,…, bản vẽ thống kê thép, chủng loại và tiết diện,…
————
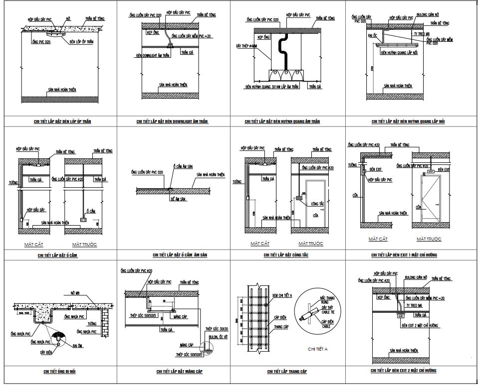
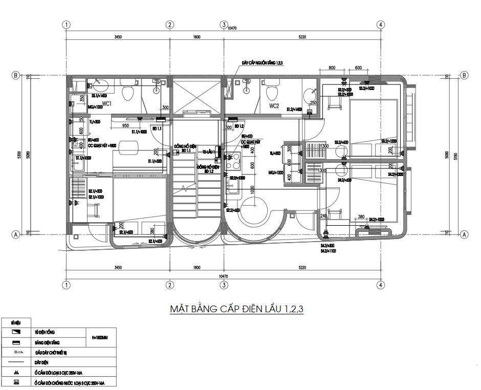
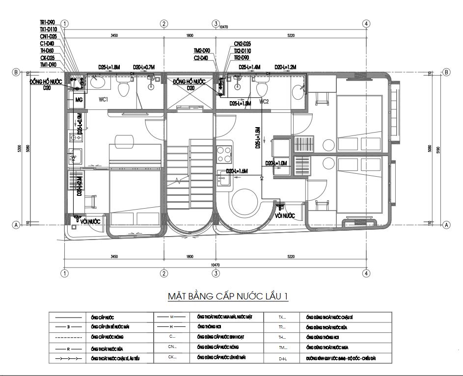
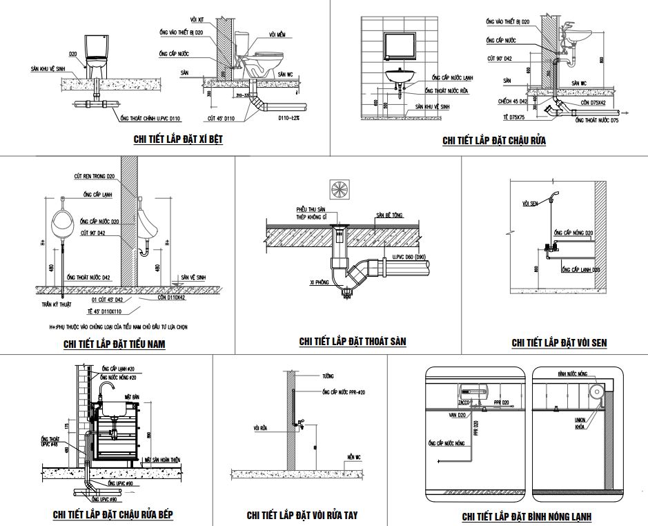
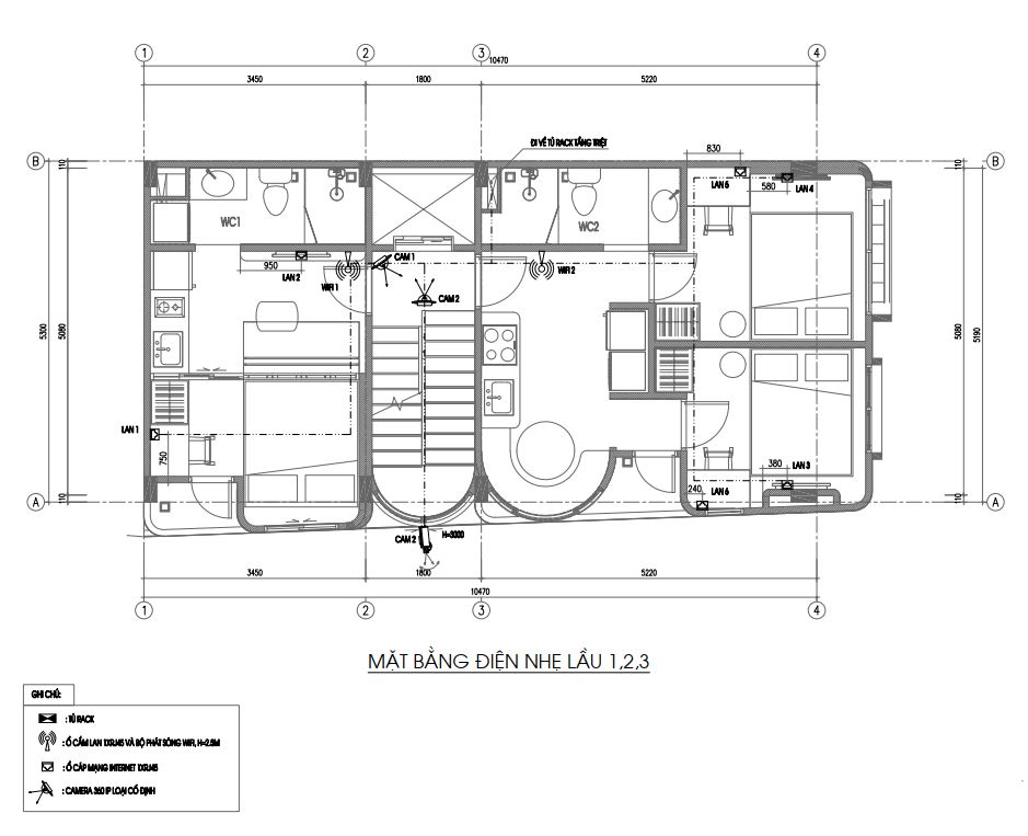
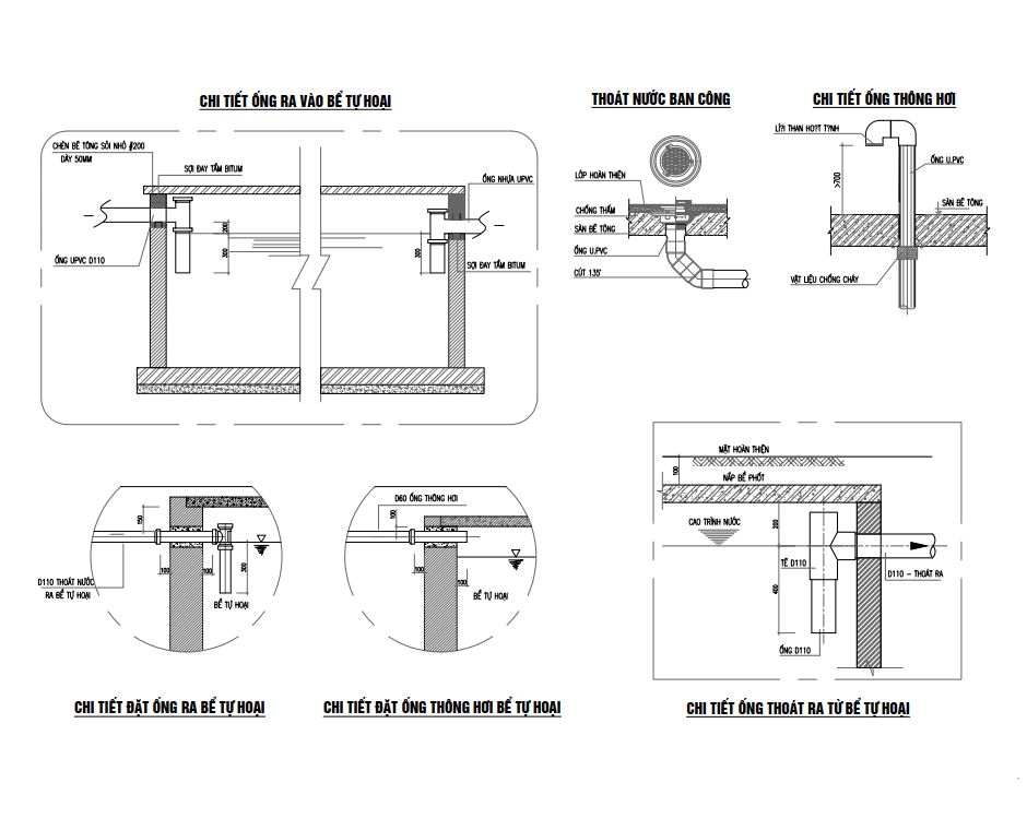
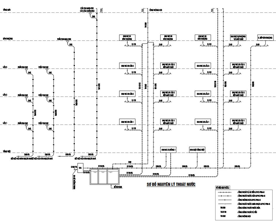
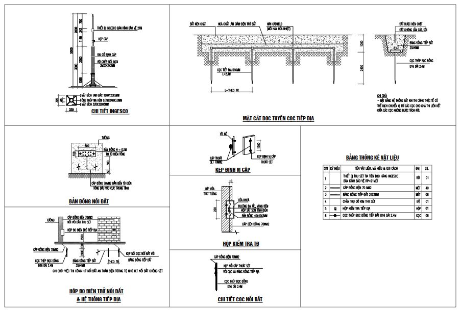
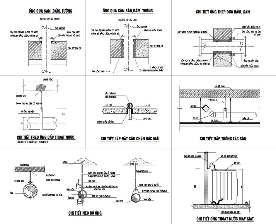
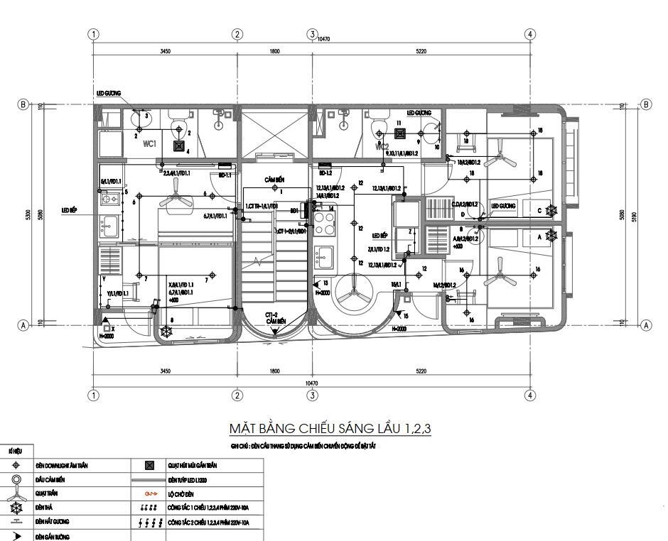
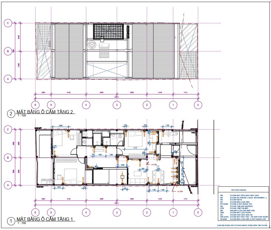
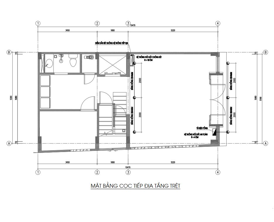
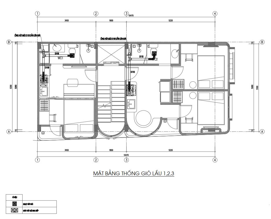
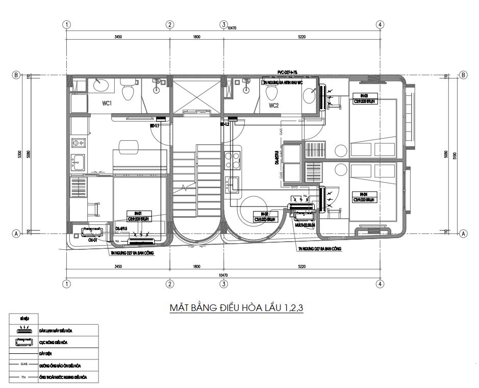
Hồ sơ thiết kế MEP
-Là bản vẽ diễn giải kich thước, vật liệu, và thông tin cho các bên liên quan nắm & thực thi ngoài công trình
-Bản vẽ MEP bao gồm : Hồ sơ điện ( công tắc ổ cắm, camera, wifi, điện nhẹ, CB, cột tiếp địa chống sét, sơ đồ nguyên lý… ), hồ sơ nước ( mặt bằng cấp thoát nước, sơ đồ nguyên lý, chi tiết lắp đặt,… ) bảng tính công suất & tải cho từng thiết bị





